قسيمة رقم
106
معلومات عن القسيمة
عنوان القسيمة
غرب أبو فطيرة الحرفية - قطعة 1 - قسيمة 106
الرقم الآلي للعنوان
95072022
مساحة القسيمة
المساحة الكلية للقسيمة هي
500 م2
عدد الادوار : 3 ( سرداب - أرضي - أول )
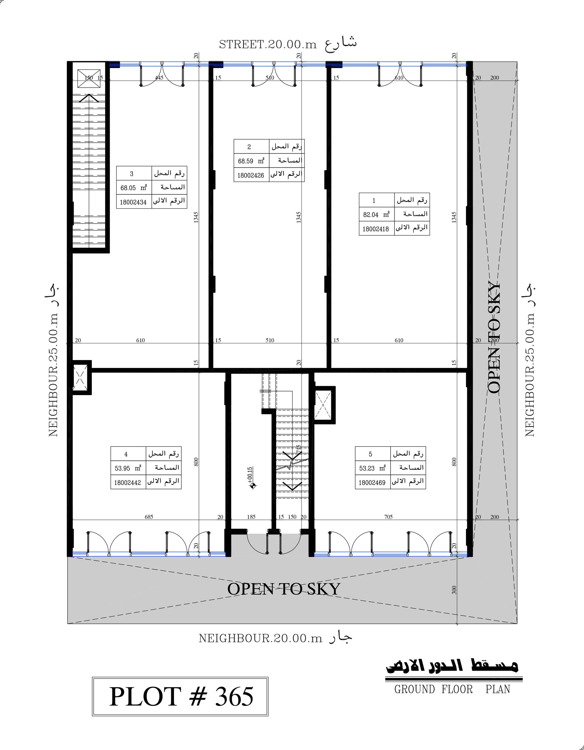
مخطط القسيمة
قسيمة 106 تعتبر قسيمة جديدة مميزة من حيث الموقع والمساحة والخدمات التي توفرها لاصحاب المشاريع التجارية سواء الصغيرة او المتوسطة او الكبيرة ومن اهم المميزات الذي يتم توفيرها
مدخل ومخرج سهل الوصول - بالقرب من شارع معروف (العايش) - مواقف سيارات - عقود ايجار وليس استثمار مدة 5 سنوات - تأجير من المالك مباشرة - بدون رسوم ادارية (عمولة) - اشهر مجانية - محلات تبدأ من 50 م٢ الى 400 م٢ - تراخيص مطابقة لوزارة التجارة وهيئة الغذاء وهيئة الصناعة.
| رقم الوحدة | نوع الوحدة | الدور | المساحة م2 | الحالة |
|---|---|---|---|---|
| 1 | محل | الأرضي | 82.04 | مؤجر |
| 3 | محل | الأرضي | 45.76 | مؤجر |
| 4 | محل | الأرضي | 45.75 | مؤجر |
| 6 | محل | الأرضي | 24.26 | مؤجر |
| 7 | محل | الأرضي | 25 | مؤجر |
| 8 | محل | الأرضي | 27.6 | مؤجر |
| 1 | دور كامل | الأول | 400 | مؤجر |
| 1 | سرداب | السرداب | 400 | مؤجر |
صور القسيمة


